Family Passivhaus
Minster, Kent
APPROACH TO THE HOUSE. A VERANDAH SHELTERS THE LARGE SOUTH FACING WINDOWS IN SUMMER
Studio Multi is working with a family on their low energy self-build home on the Isle of Thanet in Kent. The house nestles within an established group of trees and houses between agricultural fields close to the the summit of the Manston Chalk Plateau. Planning was granted in February 2023.
The domestic roof form conceals an upper storey with dormer windows. Blackened timber cladding covers thick, highly insulated walls.
Site plan: The house is located within a cluster of houses surrounded by open countryside
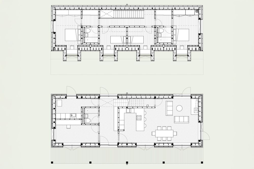
Plan: The house has a compact, efficient plan
THE FORM OF THE HOUSE IS SIMILAR TO A 'SALTBOX' HOUSE. THE LOW EAVES OFFERS PROTECTION FROM THE PREVAILING WIND.
The cladding is jettied to express a hierarchy of layers
THE NORTH-FACING REAR OF THE HOUSE HAS REDUCED GLAZING FOR BETTER HEAT RETENTION.
The timber frame is well insulated. A veranda shades the south-facing windows, and provides shelter from the rain.
Client: Private
Planning Consultant: Jacqueline Andrews
Structural Engineer: Hallam Consulting
Studio Multi team: Seth Rutt, Petr Kalab, Rasmus Pikk, Chanel Kuo, Wei Lim, Alfie Gee, Ana Nachas